詳細內容:HXF2型帶雙接管阻火呼吸閥特點及性能:
HXF2型帶雙接管阻火呼吸閥是裝在室內固定儲罐頂上的接管阻火呼吸作用,它能對石油儲罐內外壓差進行自動調節,其性能可靠、穩定,完全符合石油工業部SY7511-87標準。
HXF2型帶雙接管阻火呼吸閥適用范圍:
帶雙接管阻火呼吸閥適用于儲存內點低于28。C的甲類油品和閃點低于100。C乙油品,如汽苯、煤油、輕柴油、厚油等油品及性質相同的化工產品儲罐。

HXF2型帶雙接管阻火呼吸閥維護與保養:
為了確保帶雙接管阻火呼吸閥的性能達到安全使用目的,阻火呼吸閥應定期進行檢查和保養:
1、 檢查壓力閥盤和真空閥盤動作是否靈活,導桿及閥封環接觸面有無損傷。
2、 重新安裝壓力盤和真空盤時應保證接觸面嚴密,導桿升降靈活。
3、 啟用新的呼吸閥時必須清除盤的防震物。
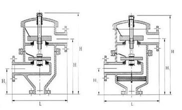
HXF2型帶雙接管阻火呼吸閥尺寸表:
|
DN |
40 |
50 |
80 |
100 |
150 |
200 |
250 |
|
H1 |
95 |
120 |
135 |
145 |
155 |
165 |
190 |
|
H2 |
220 |
235 |
275 |
320 |
375 |
440 |
495 |
|
H |
330 |
350 |
410 |
450 |
585 |
695 |
770 |
|
L |
245 |
255 |
350 |
365 |
490 |
550 |
590 |
HXF2型帶雙接管阻火呼吸閥訂貨須知:
訂貨時請注明產品尺寸、操作壓力及材質。
當需要其他標準法蘭、材質或操作壓力時請在訂貨時注明。
帶雙接管阻火呼吸閥設備材質:
|
NO |
1 |
2 |
3 |
4 |
5 |
6 |
|
構件 Component |
殼體 Body |
閥桿 Stem Gu. |
閥盤 Pres. Disk |
閥座 Pres. Seat |
墊片 Gasket |
阻火芯件 Fire Arre. |
|
材質 Material |
不銹鋼 Steel 鋁合金 Alum. 碳 鋼Casting |
304 316 316L PTFE |
304 316 316L PTFE |
304 316 316L PTFE |
304 316 316L PTFE |
304 316 316L PTFE |
注:連接標準:HG、GB、ANSI、JIS、DIN等等。
Standard Connection: HG、GB、ANSI、JIS、DIN、etc.
操作壓力:-295Pa—+98000Pa (-30mmH2O—+10000mmH2O)
Operating pressure:-295Pa—+98000Pa (-30mmH2O—+10000mmH2O)